Le Coin Immobilier sprl – demir

Le Coin Immobilier sprl – demir

Téléphone

+32 (0)4 370 20 20

Horaires

Lun - ven 9h/12h & 13h/18h

Le Coin Immobilier sprl – demir

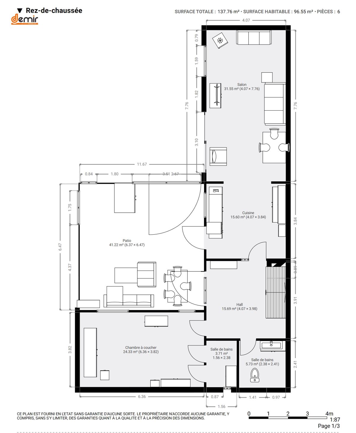
Maison rénovée, 3 ch, 2 sdb, jardin, parkings (accès camionnette)

Rue Thiers des Monts 168,
4040 HERSTAL

Réf: 560724

275.000 € soit /mois

Vu: 376
 - Online: 

UserOnline

1
3 chambres 165 m2 441 m2 RC 743€
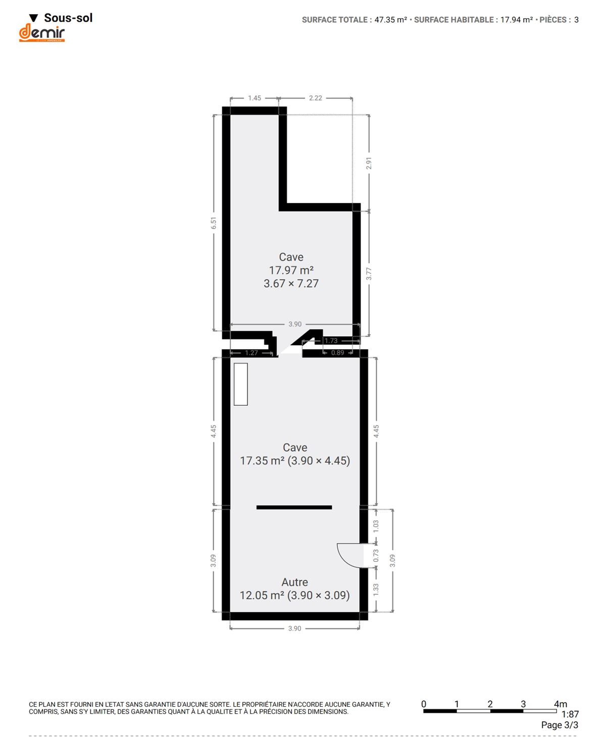
Maison rénovée, 3 chambres, 2 salles de bains, jardin, parkings (véhicule pro ou camionnette) : parfaite pour une famille ou une activité indépendante ! Découvrez cette maison unifamiliale rénovée, située dans un environnement calme à La Préalle (Herstal) et offrant une surface habitable de ±165 m² sur 2 niveaux. Le rez-de-chaussée comprend un hall d’entrée, un séjour lumineux, une cuisine équipée, une salle de bains, une suite parentale (chambre+ salle de douche) ainsi qu’une véranda donnant accès à la cour et au jardin. À l’étage, 2 chambres en enfilade, dont l’une dispose d’un coin d’eau (WC + évier), permettent d’organiser facilement un espace parent/enfant ou un bureau avec chambre d’appoint. Au sous-sol, vous bénéficiez de 2 grandes caves et d’un espace atelier également accessible par la cour. À l’extérieur, possibilité de stationner plusieurs véhicules, y compris véhicules professionnels ou camionnettes. Atouts techniques : Chauffage : chaudière gaz à condensation. Châssis : PVC double et triple vitrage. Équipements : vidéophone, citerne d’eau de pluie. PEB : Classe D – 305 kWh/m².an – Code : 20230324013257 .

Lire plus Lire moins

Généralités
Disponibilité A l'acte
RC 743€
Bâtiment
Type Villa/Maison/Ferme
Façades 3 façades
Superficie habitable 165 m2
Etat général Rénové
Nbr chambres 3
Cave Oui
Grenier X
Garage 0
Emplacement(s) Parking 4
Extérieur
Superficie terrain 441 m2
Terrasse Oui
Jardin Oui
Cour Oui
Énergie
Chauffage C.C. gaz
Electricité Demandé(e)
Fenêtre Double - pvc
Numéro du rapport PEB 20230324013257
Consommation théorique totale d'énergie primaire 49.269 kWh/an
Classe énergétique
PEB
Simulation de crédit
* Les valeurs représentées sont purement informatives
Participez à notre enquête de satisfaction
Demir Immo

Votre avis compte pour nous !
N'hésitez pas à compléter notre enquête de satisfaction.

Questionnaire acheteurQuestionnaire vendeur
Agréée Ipi
soumis au code de déontologie
Demir Immo

Sabrina Benbihi
Gérante
Numéro IPI : 509.751

Tout indépendant voulant intégrer
notre agence doit être agréé IPI
Resp. anti-blanchiment: Benbihi Sabrina