Le Coin Immobilier sprl – demir

Le Coin Immobilier sprl – demir

Téléphone

+32 (0)4 370 20 20

Horaires

Lun - ven 9h/12h & 13h/18h

Le Coin Immobilier sprl – demir

CHARME AUTHENTIQUE – 3 CH. – 2 SDB. – JARDIN

Rue Louis Demeuse 14,
4040 HERSTAL

Réf: 560596

210.000 € soit /mois

Vu: 1215
 - Online: 

UserOnline

1
3 chambres 152 m2 237 m2 RC 870€
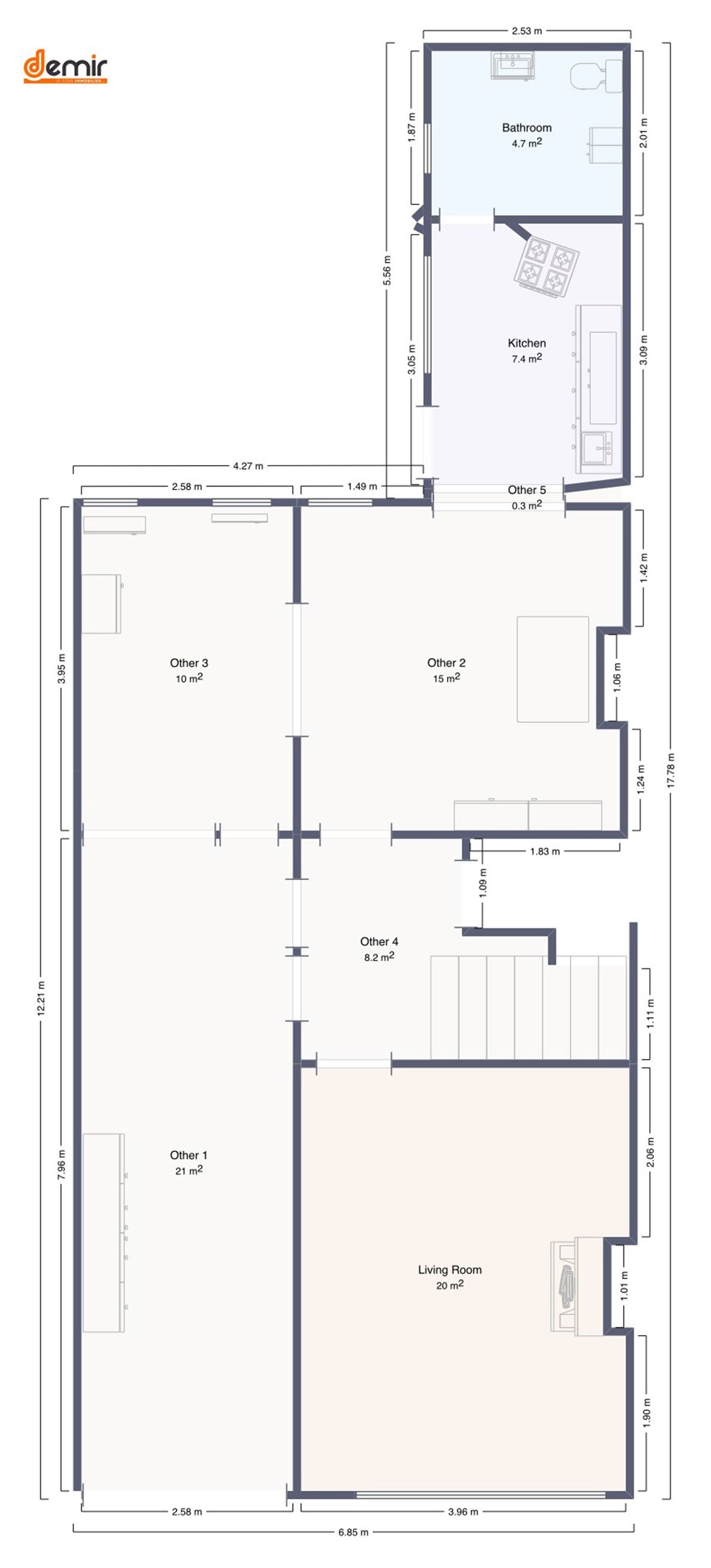
Option Spacieuse maison de caractère 3 chambres avec jardin de ±130 m², 2 salles de bains, cave, chauffage au gaz et possibilité d’aménager un étage supplémentaire. Située dans une rue calme de Herstal, cette maison unifamiliale séduit par son cachet exceptionnel, ses volumes généreux et son authenticité préservée. Dès l’entrée, vous serez impressionné par un hall majestueux de 21 m², agrémenté de hauts plafonds, moulures, marbre, miroirs anciens et carrelage en damier, le tout baigné de lumière naturelle. Ce premier espace mène à une enfilade de pièces distinctes comprenant un second hall de 10 m², un couloir central de 8,5 m², un salon chaleureux de 20 m² avec parquet en chevrons et cheminée décorative, une salle à manger de 15 m², une cuisine lumineuse de 7,5 m² avec accès direct au jardin, ainsi qu’une première salle de bains de 4,7 m². À l’étage, le hall de nuit de 6,5 m² dessert 3 chambres confortables de 22 m², 15 m² et 9 m², une vaste salle de bains de 11 m² et un WC indépendant. La maison dispose également d’une cave saine, parfaite pour le rangement. À l’extérieur, vous profitez d’un beau jardin privatif d’environ 130 m², véritable havre de paix. Moyennant un accord urbanistique, il serait possible d’aménager un étage supplémentaire sous la toiture mansardée actuellement non exploitée. Chauffage central au gaz. PEB F (UC : 20250327029177 – 80 kg CO₂/m².an). Le contrôle électrique est en attente de réception mais les schémas unifilaires sont disponibles. Une maison de caractère à rénover, offrant un cadre de vie élégant et un potentiel rare à Herstal.

Lire plus Lire moins

Généralités
Disponibilité A l'acte
RC 870€
Bâtiment
Type Villa/Maison/Ferme
Façades 2 façades
Superficie habitable 152 m2
Etat général A rafraîchir
Nbr chambres 3
Cave Oui
Grenier Oui
Garage 0
Emplacement(s) Parking 0
Extérieur
Superficie terrain 237 m2
Terrasse Oui
Jardin Oui
Cour Oui
Énergie
Chauffage C.C. gaz
Electricité Demandé(e)
Fenêtre Partiellement double, partiellement simple - pvc
Numéro du rapport PEB 20250327029177
Consommation théorique totale d'énergie primaire 79.620 kWh/an
Classe énergétique
PEB
Simulation de crédit
* Les valeurs représentées sont purement informatives
Participez à notre enquête de satisfaction
Demir Immo

Votre avis compte pour nous !
N'hésitez pas à compléter notre enquête de satisfaction.

Questionnaire acheteurQuestionnaire vendeur
Agréée Ipi
soumis au code de déontologie
Demir Immo

Sabrina Benbihi
Gérante
Numéro IPI : 509.751

Tout indépendant voulant intégrer
notre agence doit être agréé IPI
Resp. anti-blanchiment: Benbihi Sabrina